Vistas:0 Autor:Editor del sitio Hora de publicación: 2022-12-22 Origen:Sitio
Revestimiento de pared de aluminio macizo, también conocido como revestimiento de fachada de aluminio, es una opción popular para la construcción de exteriores debido a su durabilidad, bajo mantenimiento y apariencia atractiva.En este artículo, exploraremos los diversos aspectos del revestimiento de aluminio sólido, incluidos sus beneficios, el proceso de instalación y las opciones de diseño.
![]() | ![]() | ![]() | ![]() |
Una de las principales ventajas de utilizar revestimiento de pared de aluminio es su durabilidad.El aluminio es un metal resistente a la corrosión, lo que lo convierte en una opción adecuada para el revestimiento exterior en áreas con mucha humedad o cerca de agua salada.También puede soportar temperaturas extremas, por lo que es una opción adecuada tanto para climas fríos como cálidos.
El revestimiento de fachada de aluminio sólido también requiere poco mantenimiento, ya que no requiere pintura ni tinción como la madera u otros materiales.Puede conservar su acabado original durante muchos años, lo que lo convierte en una opción rentable a largo plazo.
Además de sus beneficios prácticos, el revestimiento de aluminio sólido también puede mejorar el atractivo estético de un edificio.Está disponible en una amplia gama de colores y acabados, incluidos anodizado, con recubrimiento en polvo y cepillado.Esto permite flexibilidad en el diseño y la capacidad de crear una apariencia única para el edificio.
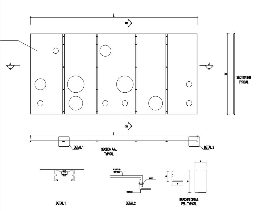
El proceso de instalación del revestimiento de fachada de aluminio consta de varios pasos.Primero, las láminas de aluminio se cortan al tamaño y la forma requeridos según el diseño del edificio.Luego, las láminas se preparan limpiando y tratando la superficie para garantizar una adhesión adecuada del acabado.
A continuación, las láminas de aluminio se unen al edificio mediante una combinación de sujetadores mecánicos y adhesivos.Los elementos de fijación utilizados pueden incluir tornillos, clips o anclajes, según el tipo de pared y el diseño del sistema de revestimiento.
Una vez que las láminas de aluminio están firmemente unidas al edificio, las costuras o juntas se sellan para evitar la infiltración de agua.Esto se puede hacer usando selladores o juntas, según el diseño del sistema de revestimiento.

Existen numerosas opciones de diseño disponibles para revestimiento de aluminio macizo, permitiendo flexibilidad en la apariencia del edificio.Algunas de las opciones más populares incluyen:
Revestimiento de chapa plana: Este tipo de revestimiento consiste en chapas planas de aluminio que se adosan al edificio en orientación horizontal o vertical.El revestimiento de láminas planas es una opción simple y rentable que es adecuada para una amplia gama de tipos de edificios.
Revestimiento de pantalla de lluvia: El revestimiento Rainscreen es un tipo de revestimiento de pared exterior que consta de una capa exterior de láminas de aluminio separadas del edificio por una cavidad.La cavidad permite que circule el aire, lo que ayuda a ventilar el edificio y evitar la acumulación de humedad.El revestimiento Rainscreen es una opción popular para edificios energéticamente eficientes, ya que ayuda a mejorar el rendimiento térmico de la envolvente del edificio.
Revestimiento de celosía: El revestimiento con persianas consiste en paneles de aluminio con listones o persianas que se pueden ajustar para controlar la cantidad de luz y ventilación que ingresa al edificio.Este tipo de revestimiento se utiliza a menudo en edificios con una alta exposición solar, ya que permite la entrada de luz y ventilación natural al mismo tiempo que proporciona sombra.
Revestimiento perforado: El revestimiento de aluminio perforado está formado por láminas con pequeños agujeros o perforaciones que permiten el paso de la luz y el aire.Este tipo de revestimiento se suele utilizar en edificios de estética moderna o de diseño industrial.
![]() | ![]() | ![]() | ![]() |
El revestimiento de aluminio sólido es una opción duradera, de bajo mantenimiento y atractiva para exteriores de edificios.Está disponible en una amplia gama de colores y acabados y puede instalarse mediante diversos sistemas de fijación.Con sus numerosas opciones de diseño y la capacidad de mejorar el rendimiento térmico de un edificio, el revestimiento de paredes de aluminio es una opción popular para arquitectos y propietarios de edificios.
Una consideración importante al elegir un revestimiento de fachada de aluminio sólido es el costo.Si bien el aluminio es generalmente más costoso que otros materiales, como el vinilo o el fibrocemento, puede ser una opción rentable a largo plazo debido a su bajo mantenimiento y durabilidad.Es importante sopesar cuidadosamente el costo inicial frente a los beneficios a largo plazo de usar un revestimiento de fachada de aluminio.
En conclusión, el revestimiento de aluminio sólido es una opción duradera, de bajo mantenimiento y atractiva para los exteriores de los edificios.Está disponible en una amplia gama de colores y acabados y puede instalarse mediante diversos sistemas de fijación.Con sus numerosas opciones de diseño y la capacidad de mejorar el rendimiento térmico de un edificio, el revestimiento de aluminio sólido es una opción popular para arquitectos y propietarios de edificios.Sin embargo, es importante considerar el costo y el impacto ambiental del uso de revestimientos de aluminio al tomar una decisión.
![]() | ![]() | ![]() | ![]() |